Economical Floorplans for the South African Housing Market

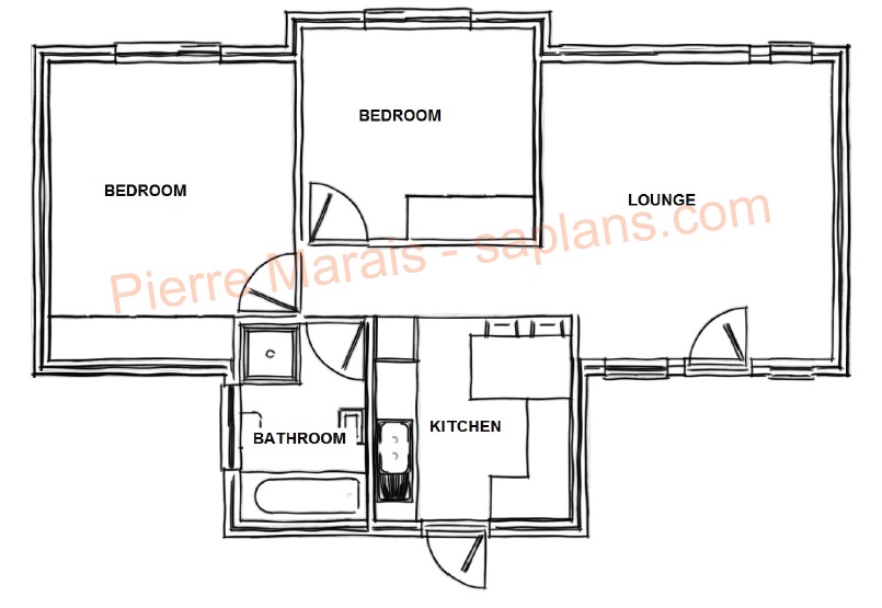
This is a very economical designed two-bedroom house. The Lounge area and one bedroom have been designed to face north and capture maximum light and sun in colder seasons. The entrance leads into the Lounge Area with an Open Plan Kitchen on the side. The kitchen has a stove, sink and fridge. Both Bedrooms have built-in cupboards. The bathroom has a shower, hand basin and a WC.

saplans033002.jpg

Floor Area

Bedrooms

Bathrooms

Garages

Levels

saplans033001.jpg
Floorplan Layout
Perspective View 1
Perspective View 2

House SPE010

Next Plan

Next Plan

Back to Samples Page

Previous Plan

Previous Plan